Because I’m often over on the east side of Highway 101, I’ve written quite a bit about the progress being made on the county’s Navigation Center. The last time I was there, I saw plenty of activity on the center’s dining hall building, which was in the process of being framed up:
In talking to some friends, though, it is clear that many people still don’t understand what a Navigation Center is, other than perhaps some form of homeless shelter. Today I thought I’d rectify that, and provide a great deal of additional detail around what San Mateo County’s new center should actually be like.
First off, as defined by LawInsider.com, a Navigation Center is “a Housing First, low-barrier, service-enriched shelter focused on moving homeless individuals and families into permanent housing that provides temporary living facilities while case managers connect individuals experiencing homelessness to income, public benefits, health services, shelter, and housing.” Thus, the idea is to first get homeless folks into temporary housing, and then help them navigate the web of available social services plus find more permanent housing. The county already does this today, but by having so many folks in one place it’ll significantly improve the efficiency of providing services to the residents of the center, and allow the county to come to the residents, rather than the other way around.
The center being built just off Maple Street east of Highway 101 is a large one being built primarily from modular components, to speed the construction process. The official groundbreaking for the project was held in April of this year (although some work had been done in advance to raise the site as a precaution against sea level rise), and the county anticipates completing the project by the end of December. That’s an incredibly short time for a project of this magnitude, but since the vast majority of the buildings are being prefabricated off-site (as we speak, presumably), they may just make that deadline.
The County’s new Navigation Center is slated to have 240 beds in a number of individual, private sleeping units. Separate prefabricated units will contain toilets and showers. Dining services will occur in one of the few buildings that will not be prefabricated (see the earlier photograph); other services and staff quarters will all be enabled through additional prefabricated modules.
Note: from here on out, I’ll be showing you renderings and drawings taken from the “Request for Qualification” document distributed to companies that were interested in providing the project’s prefabricated modules. That document, which was published on July 21, 2021, serves as a guideline for the project but may not reflect the final project in some of the details. However, the final project is intended to look very much like what was outlined in the document, so I’m comfortable relying on it here.
Here is a rendering from that “RFQ” document showing what the center should look like:
(This rendering shows the center from high above the 1548 Maple Street townhouse project site; the parking you see in the foreground is part of that project. The Navigation Center proper begins beyond the row of trees separating the two projects.)
Most of what you can see in the above rending is sleeping and restroom modules. Note how they are not only stacked — often, two or three units high — but are connected together to form monolithic buildings. The dining hall, plus the community building and support center, all of which will be built using traditional methods (and not prefabricated), are at the far end of the development, and are not clearly visible from this angle. Oh, and note the rooftops: they’re covered with solar panels that should generate a great deal of electricity, making this a very green project indeed.
Next, here is a more simplistic rendering of the project, shown from the opposite end:
This rendering not only shows the stacked units making up the residence quarters, but also the larger buildings that are being framed up in the traditional manner. For orientation, the road shown as fronting the property — it runs from the left edge of the rendering down towards the bottom right corner — is the under-construction extended Blomquist Street. The near side of this portion of Blomquist Street is where the Redwood City Police Station is located today. The intersection of Blomquist and Maple streets is not shown in the rendering, but would be close to where the “North View” label can be seen, in the lower right corner of the rendering. Maple Street itself would angle up and to the right, off the right edge of the rendering. Between it and the project site is a bit of wetlands, shown as a set of topographic lines between the center’s parking lot and where Maple Street would be if it was included in the rendering.
Note that although the city has been referring to the project’s location as “1469 Maple Street,” residents will actually enter and exit the center from Blomquist. Because of that, its address will apparently be 275 Blomquist Street.
Here is a plan drawing of the site, showing the placement of the various buildings:
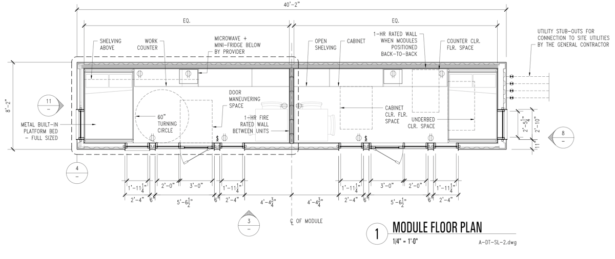
Most of what you see are bedroom modules, clustered together in groups of two, three, or six. Seventy of those modules will have three private rooms each, with each module being roughly 40 feet long and 8 feet wide. The interior of these private rooms should look something like this (click the image to get a version you can zoom in on):
Note that each has a built-in single “dorm-sized” bed, a countertop/desk with a chair, a small fridge and microwave, and lots of cabinet storage. There are no sinks or toilets, though: for those, the residents will have to make their way over to a nearby bathroom module. Each room has a private exterior door, with a lock, giving residents the privacy and security they deserve. As well, the units have windows (adjacent to the doors), lights, and climate control.
Not all units are for single occupancy; accommodation has been made for couples as well. This is done through a module that is divided into two larger rooms, rather than three smaller ones, like this:
Overall, the module is still about 40 feet long by 8 feet wide, but here each of the two rooms has a larger bed (size “full”) that can accommodate two occupants. Each room still has all of the amenities of the single units, but the additional space also allows for the addition of a tiny dining table and two chairs. In total there will be eight of these modules, allowing the Navigation Center to accommodate 16 couples.
Finally, for completeness’ sake, here is the plan for one of the restroom modules:
As you can hopefully see, these restroom modules have three normal-sized toilet compartments (with a toilet and a sink), a larger, accessible toilet compartment for those needing extra space, two regular-sized shower compartments, and a larger, accessible shower compartment. On the end is the module’s water heater; these units are pretty much self-contained (except for the water, sewer, and power hookups, of course).
Beyond these, there are a number of specialty modules for a laundry, a medical clinic, rooms where residents can meet privately with counselors, and offices and conference rooms for those working at the center.
Finally, as far as outdoor space goes, there are some open areas around the support center and dining hall, shaded by trees and by pieces of sail cloth strung between the buildings:
At the opposite edge of the property (where it borders the condo project) there is open space that may include a half court for basketball and a full court for volleyball or pickle ball or tennis, plus what I believe are picnic tables. You can see this on the plans and in the renderings; here is an enlarged image focusing in on that part of the property:
All in all, the county’s new Navigation Center looks to be a rather attractive place, and not at all what people often imagine when they picture a homeless shelter. I’m looking forward to seeing the final project, and seeing how well it matches up with the above. I’m also very much looking forward to the day when the modules start arriving; the project should make very rapid visible progress from that point, and I’m hoping to be there to take a lot of photographs, which of course I’ll share with you at that time.









Good one!!! Thanks. Bob Gates
Yet again, we are expected to absorb the impacts of the County’s determination to consolidate all social services here in RWC. This all started with the new jail in 2016 and has accelerated ever since. There is nothing that requires this from the County Seat but the decision makers don’t care. We have proven we have big hearts but our County needs to make us whole. Given our budget issues, we need money for the disproportionate burden placed on our City to pay for these impacts and we need it now!