On Monday, the Redwood City Council held a study session for the senior housing project proposed for the roughly one acre site at 910 Marshall St. Today, that site is home to a single-story Kaiser medical office building — this one:
What the developer has proposed, though, is something altogether different. Here is a rendering:
Quite a difference, eh? Most importantly, at least for some, is the fact that the proposed building would be a whopping 21 stories, or around 250 feet tall. Given that the tallest building in Redwood City currently is 10 stories, and that no part of downtown Redwood City is zoned for more than 12 (this particular site is zoned for a maximum of eight stories, or 92 feet), the proposed building is quite a deviation from what the city had envisioned.
Why so tall? Simply to provide a large amount of housing. This project proposal would contain 222 apartments (for rent, I believe) that would average around 1,200 square feet. And if you ignore the parking garage and all of the amenities that go with a development like this, 222 apartments of 1,200 square feet each would occupy more than 5.5 acres if you arranged them all cheek-by-jowl on one level. An eight story building could theoretically accommodate all of those 222 apartments and some parking and such, but only if the units were tightly packed, meaning that many (most?) of the apartments would have no windows: they’d have other apartments on all four sides.
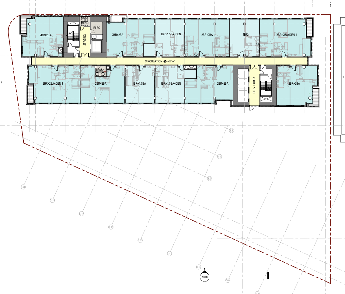
If you look at the rendering, you’ll see that the apartments are nearly all in a relatively narrow tower. Above the third floor each level would consist of a single central hallway running the length of the building with a row of apartments on either side. Here is what the floor plan of the building’s fifth floor looks like:
[click the above for an image you can zoom in on]
The dotted line around the above image shows the extent of the parcel; note how the tower itself occupies only a small portion of the land upon which the development would sit. I’ll get back to what is going on with the rest of the parcel shortly, but first I want to address the fact that 1,200 square feet is a pretty good-sized apartment by many standards. That large average size comes from the fact that this building’s apartments would range from studios up to three-bedroom, 2-1/2 bath units, with a great many having two or more bedrooms. To get a better idea, the 21st floor (the “penthouse” floor) would almost entirely be taken up by just six apartments, all three-bedroom units. But of course most floors would have more. The fifth floor for which I shared the floor plan, for instance, would contain 12 apartments, ranging from a one-bedroom, one-bath unit up to a unit with two bedrooms, two bathrooms and a den.
The vast majority — 188 — of the building’s apartments would be for independent living. In addition, the second floor would contain 15 memory care units (all studios; this floor would also contain offices and other support areas for the staff working with the residents of that floor), while the fourth floor would include another 19 assisted living apartments (plus a lounge, a dining area, and a doctor’s office and exam room serving the fourth floor residents).
That just leaves the ground floor and the third floor. The first floor, which essentially spans the entirety of the one-acre parcel, contains half of the building’s internal parking garage (the other half is on the second floor, along with the building’s memory care facility), plus the building’s lobby, mailroom, a small bistro, the “sales office”, and various support rooms such as trash, electrical, and a loading dock. The ground floor plan also shows a 1,200-square-foot retail space on the corner of Marshall and Walnut streets.
The third floor in a sense spans the entirety of the parcel as well, although it is on this level that the building starts to transition into the tower that is floors 4 – 21. On the third floor, the part that isn’t inside is a lovely-looking outdoor terrace, with landscaped gardens, a walking track, and an outdoor dining area. Inside, there would be the building’s main dining room and kitchen (the apartments on floors 4 – 21 have kitchens, but residents have the option to eat meals in the communal dining room), plus a slew of amenities: a game room, a golf simulator, a salon, a library, a communal living room, a multi-purpose room, a bar/lounge, a small theater, an arts & crafts room, a yoga studio, a fitness studio, and an indoor pool. That’s a lot of amenities for the residents: more than in any other Redwood City multi-family building that I can think of. And I didn’t even mention the small dog park that would be located outside at the fourth floor level…
Zooming in on the rendering with which I began this post shows the building’s lowest floors, with the outdoor terrace visible on the third level:
That enclosed area with the large windows and the green roof on the third floor is where the indoor pool would be located. The dog park would be up on that green roof, against the tower.
A few of the apartments would have small balconies, but most would not. The plans for level 17 show a communal outdoor terrace on one end of the building, wrapping around an “events space”: presumably, a room that residents can reserve for private gatherings and such. But for most of the residents, getting outdoors would either mean spending time on the landscaped terrace, or leaving the building altogether and enjoying downtown Redwood City.
During the meeting, the councilmembers raised a couple of good points. For one, these apartments would not be cheap: these would not be subsidized in any way, and thus would be leased at market rates. And although this was not explicitly stated, these apartments seem to be aimed at the higher end of the market, with the expectation that seniors (55+) moving in would be downsizing, most likely from a single-family home they have sold. In any case, because this project is entirely for seniors, it is exempted from having to make some percentage of the units affordable (nor would the developer have to pay a fee in lieu of those affordable units).
Second, it was noted that our fire department is not prepared to deal with a fire in, or an evacuation of, a building of this height. That, of course, is something that could hopefully be dealt with in the several years before this project could open its doors for business. And, as Councilmember Gee noted, modern high-rise buildings are constructed using materials and techniques that greatly reduce the danger of fire (and of course fire suppression systems would be required in the event that a fire actually does break out). But given that the building would be home to approximately 300 seniors, the number of medical calls that this building would likely require would undoubtedly be something that our emergency personnel would need to plan for. On the plus side, Redwood City’s main fire station is literally two blocks away, on Marshall Street.
Circling back to the building’s height, there’s no question that this building would stand out in little ‘ol Redwood City. And there will surely be a lot of opposition from those who will strongly object to this project on height grounds alone. But I was surprised when only two of the city’s seven councilmembers seemed to indicate that the building’s height was a deal-breaker for them. As for the rest, the real need for senior housing — Redwood City hasn’t seen any new senior housing built for at least ten years now — especially given our aging population, seemed to quell their objections to the building’s height. Not that they wouldn’t prefer something shorter, of course, but they at least seemed willing to entertain the idea that the benefits of a project like this would make it worth considering whether the city’s height limits should be reconsidered.
The city staff report used by the councilmembers to frame their discussion included some renderings of what the proposed building would look like from a couple of different vantage points. I’ll leave you with one that shows what the city’s skyline would look like from the Whipple Avenue overpass:
This project is still in the preliminary stage; it will be months, if not a year or two, before it comes before the city for the official thumbs-up (or down). Approval will come from the city’s Planning Commission.
As reported in the Daily Journal, the police substation in Sequoia Station is now officially open. Although this new substation won’t be open to the public (except for the front lobby where officers may on occasion meet with members of the community; otherwise it will serve as a place where officers can do paperwork and and as a base of operations from which they can more quickly respond to nearby issues), and won’t be staffed 24/7, it and the increased police presence that it now brings should serve as a strong deterrent for those prone to cause trouble. Hopefully it will enable more residents to feel safe when shopping at Sequoia Station and when riding our wonderful new electric trains.





My wife and I lived in an SF apartment that was one bedroom, ~600 square feet, quite comfortably for 10 years before moving to Emerald Hills 21 years ago. I state that because 1200 square feet seems large; making the units smaller you could eliminate some of the upper floors. My concern: an evacuation after an earthquake. 22 floors of helping the elderly down stairs will take a toll and a great deal of time.
Thanks for walking and posting!
When I first heard about this senior housing project, my initial gut reaction was to think how a 21-story building is so out of place for this town and this location. This building would be across the street from where I work at Kaiser, and I would be able to see it looking out of my office window. However, I don’t think height is necessarily evil. The more I read about this project, the more I think it is meeting an important need and providing a worthwhile service. I do appreciate that Kaiser members who live in this building can just walk across the street to get their medical care. My mind has turned 180* and I support this project now.
Hi Greg- Thank you for all the gre
Hi Greg, as usual thanks for all of the information, I saw the preliminary report in the Mercury News this week. I doubt this unit will be ready in time for us, AND we want to buy our next unit and not have to worry about rent and rent prices. We’re thinking of looking for a place in the Hamilton in Palo Alto. But my real question is I keep looking for you and your wife on Tuesday’s and Thursdays when we pick up at Little House for our Meals on Wheels deliveries. Where are you? Peter Frank
We’ll be sorry to lose you, if you indeed end up in Palo Alto (or elsewhere), but I certainly understand. My wife and I still have years (we hope!) before we might consider actually moving to such a place, so although I look at projects like these with the eye of a potential resident — someday — the timeframe of this and hopefully future projects is not an issue for us.
As for Meals on Wheels, we drive on Fridays (with the very occasional pick up of usually our same route on other weekdays) so if you are to see me, it’ll be at one of the in-service meetings. Do look for me there!