Someday, maybe, I’ll use all of the information I’ve accumulated over the last ten years or so of writing this blog to put out a book on Redwood City’s rather incredible transformation. Maybe. But I keep waiting for that transformation to stop, or at least take a breather. And today, it seems, is not that day.
This week, allow me to introduce Redwood City’s newest housing project proposal: the 1320 Marshall Condos, planned for, you guessed it, 1320 Marshall St. To begin with, that address leads you to what most would consider to be the rear of the property, which spans the block from Marshall Street to Broadway and will be up against the Garden Motel on the left side and the building at 1410 Marshall St. that used to house a dialysis clinic (and now is home to Caminar, a clinic that treats mental health and substance abuse issues) on the right, as viewed from Broadway. From what I can tell — the plan submitted so far is very preliminary and isn’t terribly precise (nor is it very complete) — this project would replace a handful of Broadway storefronts. Most of those currently make up the Centro Cristiano Sion church, with the last until recently being home to CariBlue Restaurant, which served Caribbean cuisine. Here are the storefronts involved along Broadway:
From Marshall Street it is not really possible to get a single picture showing the entire set of buildings: there are some thick trees lining the street for much of the distance. But there is one large driveway that shows at least part of these buildings from that side:
Proposed for these spaces would consist of 32 for-sale condominiums, five of which would be affordable at the Moderate income level. The condos would be grouped into three stand-alone buildings, with one, containing 16 condos, spanning the property along the Broadway frontage, and two others, each with eight condos, standing perpendicular to, and behind, the first. The front entrances to the 16 condos in the first building would be directly on Broadway, and would look something like this (with Broadway running where the large green front area is shown; in reality there would be small patios and a narrow planting strip between the buildings and the sidewalk):
The entrances to the other units would be along the sides of the development. The current plan shows a three-foot-wide walkway on either end of the above building that leads to the two buildings that would contain those units. The entry doors to eight of the condos would face the Garden Motel side of the property, and the doors to the other eight would face towards Caminar’s parking lot (which is located on, and accessible from, Marshall Street). Each unit’s garage would be entered from the center of the property, via a T-shaped drive that would enter from and exit to Marshall Street, as shown here:
The plans so far don’t show how the units would be laid out inside, but as you can see, at the garage level at least, they are narrow and deep. Each unit has a two-car garage with the cars arranged in tandem fashion (that is, nose-to-tail), along with, at the front of the unit, a relatively small bit of living space that for some would probably just little more than a stairwell and for others would also include a small office/den/guest space (a couple of the units are labeled “accessible” which indicates to me that their ground floor would have a bed and bath for someone who cannot easily negotiate stairs).
This rendering shows one of the two smaller buildings, as viewed from the garage side (that is, from the stem of the T-shaped driveway):
As you can see from these last two renderings, the units appear quite narrow from the outside. To clarify what “narrow” means, the entire parcel is about 193 feet along Broadway in total. The rough overhead plan shows a three-foot-wide walkway on either end of the property; subtracting those walkways and dividing the result by 16 (the number of units in the building along Broadway) means that each unit is just a bit wider than 11-1/2 feet, on average. But that, plus the way the windows, doors and balconies are laid out in the renderings of the unit fronts, has me thinking that there won’t be a straight vertical wall separating each unit, but instead units will interlock such that some of their rooms will be partially or entirely above the rooms of other units. But that’s just my guess; we’ll have to wait for a more detailed set of plans to be sure.
This is an interesting project proposed for an interesting site.The Broadway frontage sits among what today are a number of commercial buildings. But in the rear, directly across Marshall from the site, there are a number of large apartment buildings. And indeed the zoning here — Mixed-Use Corridor — allows for a mix of commercial and high-density residential uses. Thus, this is an appropriate development for this particular site.
The 1320 Marshall Condos project is in the very early phases; the city will need a lot more information before it can begin the process of considering whether or not to approve it. However, I should note that this is an SB-330 project, which limits the ways in which the city could deny it, assuming it would even want to. SB-330 also streamlines the approval process, meaning that if the developer goes ahead and submits the necessary project documents, it has a good chance of getting approved pretty quickly.
That’s about it for this project. Elsewhere, and on a much smaller scale, I noticed that Belle Spa, which was located on Broadway next to Gourmet Haus Staudt, has closed. The paper covering the windows — which sports the logo of a German beer — sends a strong signal that Gourmet Haus Staudt might be taking it over:
My guess was that Gourmet Haus Staudt would be expanding either their beer garden, their German store, or both — but that is not the case. A a brief chat with one of the owners reveled that this will likely be something altogether different, although they wouldn’t give any more hints than that. So keep an eye on it! I’m just glad that a retailer with a solid track record in Redwood City intends to take over this space.
In other news, Ocean Oyster Bar & Grill continues to take steps towards opening; recently they added official signage to their space within the Century Theatres building:
And the hotel project underway at the corner of Veterans Boulevard and Brewster Avenue also continues to make good progress. They’ve now poured so much concrete that I can’t get a good picture from street level, so this week while on my walk I made the trek up seven stories to the top of the parking garage across the street to get a photo that better shows the progress so far:
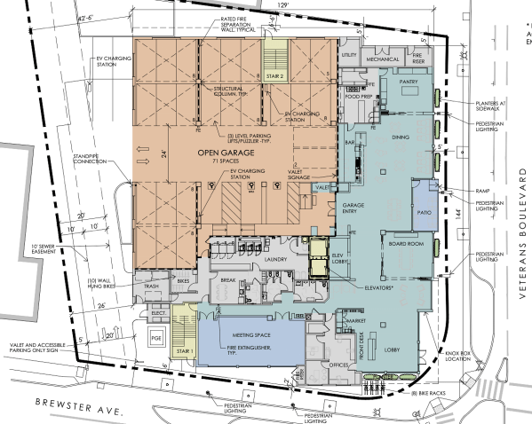
The area on the right, where the pillars stand on the Veterans Boulevard side of the building, all the way to the corner, is where the hotel’s lobby, dining area, and other common areas will be. Along Brewster will be offices, some utility spaces, and a large meeting room that presumably guests can use. The rest — behind those large slab walls from which the forms have been removed, is where the building’s ground-floor parking garage will be located (mechanical stackers will allow the hotel to squeeze 71 cars into that part of the building). For the truly curious, here is the layout of that ground floor:
(Click the above image to get a version you can more easily zoom in on.)
I’ll write more about this project as it goes along, but as you can see the contractors will soon be starting on the second floor, which will contain 29 of the hotel’s 91 guest rooms, plus the hotel’s fitness center and a small outdoor courtyard. (The top two floors will have 33 guest rooms each.)
As you can see, Redwood City’s transformation goes on and on (and on…), even if you ignore all of the progress being made on the massive ELCO Yards and Broadway Plaza projects and the project to build a large amount of housing and a VillaSport Athletic Club on the former Century Park 12 Theatres property. And we can’t really ignore all of that progress, which from week-to-week is considerable. So perhaps any book from me will just have to wait…
On Saturday, December 7, from 10 a.m. to 6 p.m., Redwood City’s Downtown Business Group will be hosting the city’s 18th Hometown Holidays celebration. There will be vendors, entertainers, complementary pictures with Santa, plus a parade. It should be a really fun time, so mark your calendars and be sure to head down to Courthouse Square on the 7th of December.









Awesome!
And on & ON!!! Slow, SMART growth would be a change!
Where is our town of Redwood City??
😦
Great detail – i like reading your updates on the area
Sent from my iPhone
Thanks!
It’s sickens me to see how much growth is going
You are certainly not alone with that sentiment. At least people no longer call us “Deadwood City”…
I would buy a book! But I guess the audience reading this is pretty biased towards being interested in it 😆
Thank you for your commitment on the hotel picture. Great view from up there.
Thanks. I considered taking the elevator to the top of the parking garage, but decided that I needed the exercise. I kind-of regretted that decision; it was a long way up! But the view is nice; I also got a nice shot towards the bay. I’ll definitely be going back up there as the project progresses.