Another week, another development project. This time, it is slated for the large parking lot behind the L’Academy Language Immersion Preschool (the language is Mandarin), which can be found on El Camino Real at Hemlock Avenue, two blocks south of Woodside Road:
The preschool building itself isn’t slated to be touched. Instead, the parking lot, which is located further down Hemlock Avenue (at the corner of Hemlock Avenue and Linden Street) is where the building — dubbed Redwood Square — would be built:
Because the building would eliminate all of the preschool’s parking, the building’s ground-level parking garage would have a number of spaces dedicated for use by the school. Which turns out to be a bit of a puzzle — but I’ll get into that in a bit.
First up, here is a rendering of what the building could look like, as viewed from the intersection of Hemlock Avenue and Linden Street:
The plans show a four-story building, with the ground floor being almost entirely made up of the parking garage (there are of course a couple of utility spaces, two stairwells, and a tiny lobby with the building’s elevator also on that ground floor). The upper three floors would hold the building’s sixteen for-sale condominiums.
One of the somewhat puzzling aspects of this building are the configurations of the units themselves. Of the sixteen, six are one-bedroom, two-bathroom units. All of the remaining ten have four bedrooms and four bathrooms. Curiously, there is nothing in-between: no two- or three-bedroom units. Which is fine, but unusual.
More unusual are the bathrooms: every bathroom in this building is a full bathroom, with a bathtub. No “powder rooms” or “half baths” here. The one-bedroom units have two bathrooms, both with bathtubs. And the four-bedroom units have four bathrooms — and four bathtubs. While you might think that therefore each of the bedrooms in the four-bedroom units has an associated full bath, that isn’t the case: all of the condos (including the one-bedroom ones) in this development have a “public” bathroom for use by the unit’s residents and guests. The remaining bathrooms are indeed associated with individual bedrooms, meaning that three out of the four bedrooms in the four-bedroom units have private bathrooms, while the fourth bedroom — which perhaps should therefore be thought of as a den — does not.
Four bedrooms, three of which have baths, does make me wonder if perhaps the developer is thinking that the four-bedroom units will be sold to someone who might live in one bedroom and rent out two or three of the others, as seems to have been done in some other developments within Redwood City.
So, the bathroom configurations are one minor puzzle. For another, take a good look at the rendering, above. Notice anything? How about a lack of balconies? This development does, in fact, have a couple of private balconies — but only a couple. Five of the 16 units — all on the second floor — have small private decks, while none of the rest do. Two of those decks face Hemlock Avenue (and are nestled between the two white projections you see on the right side of the building) while the other four face out towards Woodside Road (in reality, they look out onto the Big-O Tire store next door). Now: do the math. Two decks facing one way, plus four facing the other equals six decks. But I said that there are only five units with private balconies? Indeed, one of the four-bedroom units on the second floor has two decks. But one of those decks sits between the building and the private deck of the next-door unit. There is a “privacy fence” between the two decks, meaning that weird one has four walls. So. Imagine you are the owner of that two-deck unit. You walk out onto this odd deck, and look to your left: you see the privacy fence. Look straight ahead, and you see a blank wall (behind which is the neighboring unit’s kitchen). Look to the right, and you see a window — through which you see the neighboring unit’s dining room!?! Yes, although there is a privacy fence blocking people on the neighboring deck from looking onto yours, if they simply walk into their dining room and look out the window they’ll be staring straight at your deck. Some privacy, huh?
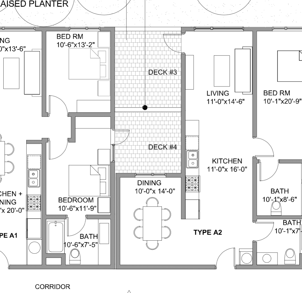
If you are confused — I admit that was a lot of words — allow me to focus on the plans that show this rather puzzling configuration:
“Deck #4” — the one in the center of the image — is the problematic one. “Your” unit is on the left, your neighbor’s is on the right, and the deck between yours and the neighboring property — here labeled “Deck #3” is your neighbor’s. Note that you have no windows looking onto their deck, and a privacy fence separating your two decks (marked by the black dot). But your neighbor does have a window looking onto yours. Fortunately, your condo has another deck, akin to “Deck #3,” which is located beyond the left edge off the above image (you get to it by going through one of the bedrooms) and which is much more private. Although it does look out onto that tire store…
I mentioned that all of these decks are on the second floor (and are only associated with five units on that floor). The units on the third and fourth floors don’t have private decks, allowing the sun to (when it is in just the right position) reach down to the second floor decks. So what are the residents of the remaining floors (and the one unit on the second floor that doesn’t have a deck) to do? Well, there is a relatively large “common deck” on the fourth floor. It looks out over Hemlock Avenue, and sits atop those two white projections I referred you to earlier. Here is the layout of that deck on the plans:
Note that the deck isn’t really rectangular, as it would seem at first glance: the above plan shows what it (kind of) would look like from above. The white rectangle on the left (labeled “2nd floor deck with green roof”) is lower down, on the second floor (and would be covered by artificial turf, as noted; this isn’t someone’s private deck, but instead is simply inaccessible space above the ground floor garage). Also note the two side-by-side white rectangles in the center of the plan near the bottom edge: those are indeed “private” decks for two of the units that face Hemlock Avenue. Decks that apparently are not so private, if people from above can look down on them…
Here is a photograph the developer thoughtfully included of a different building that is intended to give us a feel for what the fourth-floor deck might be like:
The above image, not being a rendering of the proposed project, is simply to give us a feel: if you compare it to the segment of the plan I included earlier, you’ll see that is differs in the furniture used and some of the other details. Of course, the plan, too, is just to give us some idea of what that deck would be like. In reality, someone will presumably come up with an actual layout and order real furniture that may or may not end up being like what is shown on the plan. And because this is a condominium project, the eventual owners of the sixteen units will jointly own this common area and its furnishings (and plantings; the plan shows plants in pots) and will be free to do with the space whatever they collectively desire.
Enough with the decks. As for the units themselves, they seem a good size. The four-bedroom units are all roughly 1,550 square feet, whereas the one-bedroom units are right around 1,000 square feet in size. That’s a decent amount of space. Plus — and regular readers of my blog know that this is a huge plus, at least for me — each condominium is entirely situated all on one level. So although you’ll take the elevator (or the stairs) up to the floor on which your condo is located, you won’t be taking any stairs to, say, go to bed. Which, for those of us hoping to someday downsize for our “golden years,” is a big deal.
Most of the units have a long, relatively narrow public space containing the unit’s kitchen, dining room, and living room. Unfortunately, the front doors generally open right into the kitchen space, which in no cases has a fancy island or anything: the kitchens are pretty much all arranged linearly along one wall. In each unit, as I mentioned earlier, the one “public” bathroom (with a bathtub!) opens off of that public space, as do the unit’s four (or one) bedrooms. Not the most imaginative layouts, but practical. [The plans can be viewed at the project page.]
Now, about that parking. I mentioned earlier in this post that the configurations of the four-bedroom units indicates that some or all of them may end up being occupied by housemates. Thus, we could be looking at two, three, or even four cars associated with each of the four-bedroom units (although to be fair, the younger generations are less interested in owning cars than my generation is, so I acknowledge that we are into the weeds here). But to my mind this project runs the real risk of flooding the neighborhood with extra cars.
Just how many parking spaces does that garage have, you should be asking right about now? Glad you asked. 42 is the answer (both to this question and, for you science fiction nerds out there, the Ultimate Question of Life, the Universe, and Everything). But of course, the answer isn’t nearly that simple. First off, 20 spaces are assigned to the ten four-bedroom units, with 18 in a tandem configuration and two occupying the space of one through the use of a mechanical stacker. With two spaces assigned to each four-bedroom unit, if the residents of any of those units have more than two cars — which they might, if rooms are being rented — well, there’s always the street.
Next, six spaces — two with stackers, for a total storage capability of eight cars — are set aside for five of the one-bedroom units. There is a handicap accessible space that is also assigned to the one-bedroom units, meaning that there is room for nine cars divided among the six one-bedroom units; hopefully that’ll be enough. Finally, there is one guest/daycare (I think they mean preschool)/van-accessible space, plus six spaces that each contain a stacker, providing a total of 13 parking spaces for use by the preschool. (For those studying the plans, that accessible space is not counted in the tables showing parking counts for the preschool; those tables count 12 spaces dedicated to the preschool, with the one accessible space being shared).
So. 20 spaces total for the ten four-bedroom units, plus 9 spaces set aside for the six one-bedroom units, plus 12 spaces dedicated to the preschool, plus one handicap/guest/school space adds up to…42. As for guests, they have that one shared space, assuming it is not taken. Plus, when the school is not in session (most evenings, weekends, and, presumably, summer), the school’s spaces appear to be open to guest parking. But if your guests are staying overnight, make sure they park on the street so that the school’s spaces are free in the morning…
The Redwood Square proposal is a really interesting one, with many quirks and unique features. I always approach residential projects like these imagining what it would be like to live in them. At 1,550 square feet and four bedrooms (at least two of which my wife and I would use as individual workspaces), plus the fact that all of the living space is on one floor, I see a lot to like about this project. But I’d definitely want one of the units with at least one (semi)private deck — which would conflict with my preference to live on the top floor (for both the view, and because that way I wouldn’t have people walking around on my ceiling). And given the somewhat mixed parking situation — although I could certainly live with tandem parking (and perhaps a stacker; I’ve never actually experienced one of those) — I can’t quite make up my mind as to whether I would seriously consider downsizing to this place. If it gets built, I’ll have to take a tour. That will likely sway me one way or the other.
This project is new to the Redwood City’s Development Projects list, and thus isn’t likely to be coming up for review for quite some time. But you can bet I’ll be watching the review of this one with interest. Hopefully, it will sort out some of the things that have me puzzled.






Pingback: They Just Keep Coming | Walking Redwood City
Pingback: Bay Day | Walking Redwood City
Pingback: Lower Stakes | Walking Redwood City
Looks good
Thank you for incorporating the 42 reference. This plan is one that Douglas Adams could have written a full series on. I cannot believe that it would ever pass muster with a normal Planning
Commission but with the RWC Intergalactic Code, I am sure it will be built as is…..